Yes – a shower is good.
Even taking one more than once a month can be acceptable.
However; I’m having difficulty with WHICH shower.
No, a shower is not a shower is not a shower.
I really like this rounded glass style. I also really like the pan-less style, where the floor of the room seamlessly flows into the shower. I think this is called a “wet room.”

The problem is, I don’t think I can make that work in Missy. It would require a good bit of space under the shower area. Space that I do not have.
So, I think I will have to use a shower pan. Like this:

That said, I’ve done a bit of research and I can paint this pan prior to installation (because I really do not like a white pan).
The one that I currently have my eye on is the following. It is a VIGO Sanibel.

What say you?
Do you like this style? If not, what style do you like? Why would it be better in Missy?
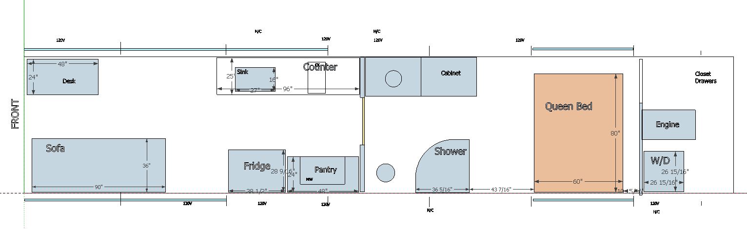
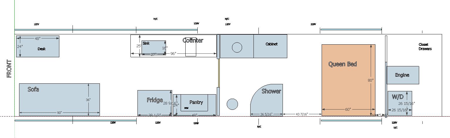
I suppose I should share my current floor plan idea for the type of shower to make any sense. So, here it is.
This week Missy and I will be back in the Twin Cities. Another week at the home office, then back to Kimball for two final tasks and then it’ll be time to be thinking seriously about heading west. It has been warm here of late and thoughts of air conditioning have been recurring. It seems I’ve gone soft (or softer).
Note from JD: Updates and construction on this are here and here. The nearly finished project is here.






Yes… I guess a ‘body’ does need some shower water… once in awhile. I understand not choosing the no pan shower… lack of basement space. I like either one of the other two. And thanks for the diagram floor plan. I was wondering how you had it designed.
I agree, the pan option is what I would choose. How study is the hardware on the glass? Will it hold up over time bouncing down the road… We are going to do a remodel on a Dutchstar or Mountain Aire and have decided to go with a curtain on a fold out rod. Simple, easy to clean(washing machine), hard water not an issue. Trying to learn from the past and others…
She is looking very good…
Thanks Jim! Yes, the door roller mechanism seems pretty stout. The metal rollers have a rubber “sleeve” that captures the bar. I’ve played with a demo version in one of the home improvement stores and thought felt pretty solid. The door will need to be locked open or closed when traveling as it rolls pretty easily. I don’t have a solution for that yet but the little WonderKid Child Safety locks that I am using on my refrigerator doors might be the answer (they are working very well on the refrigerator).
After considerable research, “round body, round showeer”. Las Cruces weighed in.
Yes!! Wait…
Are you implying that MY body is round?!?!?
🙂
Here is a trick I love to use on my shower door is when it is clean spray Rain X on it, let it sit for 5 minutes then wipe dry. It works great to keep it clean. I usually have a squeegee I run over the shower door before I get out. Just a thought that might help in daily duties.
Great idea Amanda! The only part that concerns me is the “daily” part. Are you suggesting that once I get a shower I will need to clean it daily? Or worse, USE it daily?!?!? I may have to go without if that is the case!! 🙂